Save
Ask
Tour
Hide
$499,000
184 Days On Site
125 E 68th WayLong Beach, CA 90805
For Sale|Single Family Residence|Active
1
Bed
1
Total Bath
1
Full Bath
558
SqFt
$894
/SqFt
1924
Built
County:
Los Angeles
Listed by Johnny Chacon of Buckingham Investments, Inc [email protected]
Due to the health concerns created by Coronavirus we are offering personal 1-1 online video walkthough tours where possible.
Call Now: 949-774-8692
Is this the listing for you? We can help make it yours.
949-774-8692



Save
Ask
Tour
Hide
Mortgage Calculator
Monthly Payment (Est.)
$2,277Calculator powered by Showcase IDX, a Constellation1 Company. Copyright ©2026 Information is deemed reliable but not guaranteed.
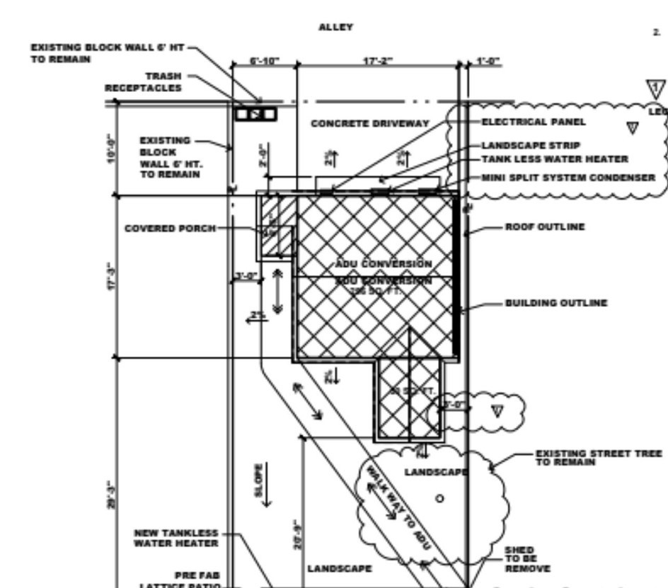
Welcome to 125 E 68th Way, a charming and cozy 1-bedroom, 1-bath home featuring a bonus room that is ideal for a second bedroom, home office, or den. This home is perfect as a starter home or an investment property, combining functionality with great potential. A two-car detached garage is located at the rear of the property with convenient alley access, offering an exciting opportunity for conversion into an Accessory Dwelling Unit (ADU) to add long-term value. ADU plans and permitted additions for a master suite are included with the sale. Please call / Text for details.
Save
Ask
Tour
Hide
Listing Snapshot
Price
$499,000
Days On Site
184 Days
Bedrooms
1
Inside Area (SqFt)
558 sqft
Total Baths
1
Full Baths
1
Partial Baths
N/A
Lot Size
0.0662 Acres
Year Built
1924
MLS® Number
SB25203252
Status
Active
Property Tax
N/A
HOA/Condo/Coop Fees
N/A
Sq Ft Source
Assessor
Friends & Family
Recent Activity
| 2 months ago | Status changed to Active | |
| 2 months ago | Listing updated with changes from the MLS® | |
| 2 months ago | Price changed to $499,000 | |
| 6 months ago | Listing first seen on site |
General Features
Acres
0.0662
Attached Garage
Yes
Garage
Yes
Garage Spaces
2
Land Lease
No
Levels
One
Number Of Stories
1
Parking
Attached
Parking Spaces
2
Property Sub Type
Single Family Residence
Sewer
Public Sewer
Special Circumstances
Standard
Water Source
Public
Zoning
LBR1N
Interior Features
Fireplace Features
None
Laundry Features
Common AreaOutside
Main Level Bedrooms
1
EntryFoyer
Save
Ask
Tour
Hide
Exterior Features
Lot Features
Back Yard
Pool Features
None
View
Neighborhood
Waterview
Neighborhood
Community Features
Building Access
/
Community Features
Sidewalks
Financing Terms Available
ConventionalFHAOwner May Carry1031 Exchange
MLS Area
7 - North Long Beach
School District
Long Beach Unified
Schools
School District
Long Beach Unified
Elementary School
Unknown
Middle School
Unknown
High School
Unknown
This information is for your personal, non-commercial use and may not be used for any purpose other than to identify prospective properties you may be interested in purchasing. The display of MLS data is usually deemed reliable but is NOT guaranteed accurate by the MLS. Buyers are responsible for verifying the accuracy of all information and should investigate the data themselves or retain appropriate professionals. Information from sources other than the Listing Agent may have been included in the MLS data. Unless otherwise specified in writing, the Broker/Agent has not and will not verify any information obtained from other sources. The Broker/Agent providing the information contained herein may or may not have been the Listing and/or Selling Agent.
Neighborhood & Commute
Source: Walkscore
Save
Ask
Tour
Hide

Did you know? You can invite friends and family to your search. They can join your search, rate and discuss listings with you.